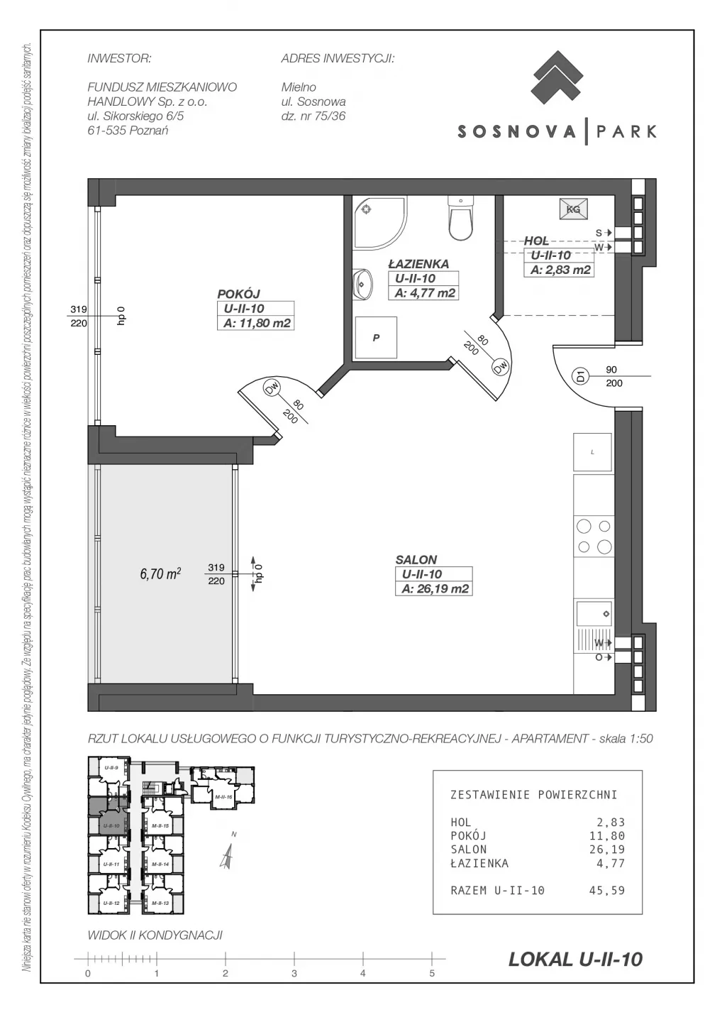
Mieszkanie U-II-10

850 489,65 zł dostępne

Szczegóły

Zapytaj o to mieszkanie

* - pole wymagane

Kontakt

Telefon:
690 800 811
Email:
biuro@rynkowy.pl

Podstawowe parametry

Pow. wewnętrzna
44,61 m2
Liczba pokoi
2
Poziom
Piętro 1

Opis

Informacje o inwestycji

Sosnova Park Mielno - apartamenty inwestycyjne (Sosnowa)

Developer: Fundusz Mieszkaniowo Handlowy

Udogodnienia: nowoczesne budownictwo, panoramiczne okna, jasna i otwarta przestrzeń, zielone otoczenie, sąsiedztwo nadmorskiej promenady, blisko centrum, spokojna okolica, możliwość instalacji jacuzzi na tarasie wybranych apartamentów Przynależności: balkon, taras, loggia, ogródek Bezpieczeństwo: drzwi antywłamaniowe, domofon, monitoring, osiedle ogrodzone Wielkość Projektu: 15 apartamentów inwestycyjnych Garaże: Do każdego lokalu przewidziano zakup miejsca postojowego naziemnego Komunikacja: stacja kolejowa Mielno Koszalińskie - 1,4 km Odległość od Centrum: Inwestycja znajduje się w centrum miasta

Najnowsze oferty

Pow.
33,59 m2
Pok.
2
Poz.
Piętro 2

Mieszkanie 2.B.2.06

363 611,75 zł
752 976 zł
Pow.
55,78 m2
Pok.
3
Poz.
Parter

Mieszkanie B22/P/A

674 938 zł
Pow.
33,60 m2
Pok.
2
Poz.
Piętro 3

Mieszkanie 23

507 360 zł

Skontaktuj się z nami

Interesuje mnie lokalizacja:

Interesuje mnie inwestycja:

Interesują mnie lokale:

* - pole wymagane