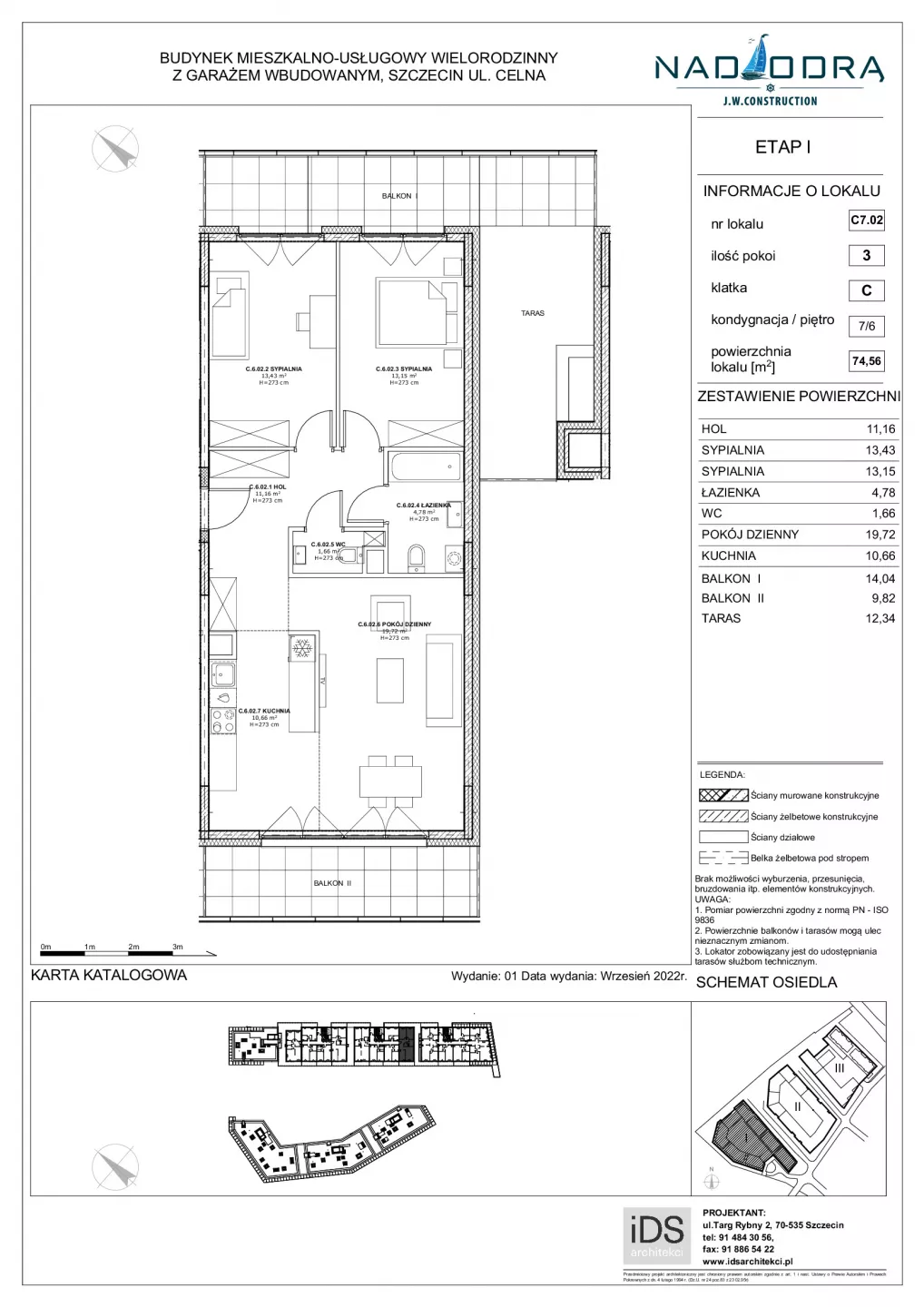
Mieszkanie C7.02

1 189 710,50 zł dostępne

Szczegóły

Zapytaj o to mieszkanie

* - pole wymagane

Kontakt

Telefon:
690 800 811
Email:
biuro@rynkowy.pl

Podstawowe parametry

Pow. wewnętrzna
74,59 m2
Liczba pokoi
3
Poziom
Piętro 7

Opis

Informacje o inwestycji

Nad Odrą (Celna)

Developer: JW Construction

Udogodnienia: Wpobliżu inwestycji znajdują się placówki edukacyjne, park rozrywki, lokale usługowe. Przynależności: Każde mieszkanie posiada balkon lub taras. Deweloper przewidział również komórki lokatorskie. Bezpieczeństwo: Domofon. Wielkość Projektu: Inwestycja składa się z wielorodzinnego budynku mieszkalnego- 189 mieszkań Garaże: W inwestycji będą dostępne miejsca postojowe podziemne. Komunikacja: 780 metrów- Tramwaj Odległość od Centrum: 1,6km

Najnowsze oferty

Pow.
33,59 m2
Pok.
2
Poz.
Piętro 2

Mieszkanie 2.B.2.06

363 611,75 zł
752 976 zł
Pow.
55,78 m2
Pok.
3
Poz.
Parter

Mieszkanie B22/P/A

674 938 zł
Pow.
33,60 m2
Pok.
2
Poz.
Piętro 3

Mieszkanie 23

507 360 zł

Skontaktuj się z nami

Interesuje mnie lokalizacja:

Interesuje mnie inwestycja:

Interesują mnie lokale:

* - pole wymagane