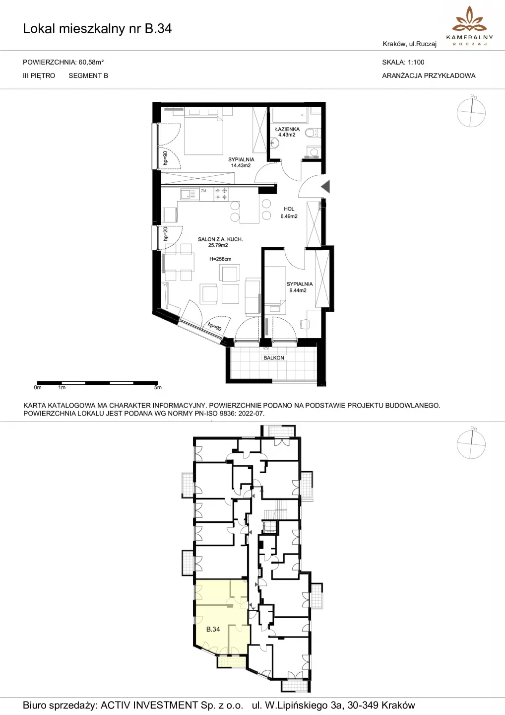
Mieszkanie B34

908 700 zł dostępne

Szczegóły

Zapytaj o to mieszkanie

* - pole wymagane

Kontakt

Telefon:
690 800 811
Email:
biuro@rynkowy.pl

Podstawowe parametry

Pow. wewnętrzna
60,58 m2
Liczba pokoi
3
Poziom
Piętro 3

Opis

Informacje o inwestycji

Kameralny Ruczaj (Ruczaj)

Developer: Activ Investment

Udogodnienia: zielona okolica, nowoczesna architektura, kameralna zabudowa, doskonale skomunikowana dzielnica miasta, pełny dostęp do miejskiej infrastruktury, cicha i spokojna okolica Przynależności: ogród, balkon Bezpieczeństwo: drzwi antywłamaniowe, domofon, osiedle zamknięte Wielkość Projektu: 36 mieszkań Garaże: Na terenie inwestycji przewidziano garaż z miejscami postojowymi Komunikacja: W pobliżu inwestycji znajdują się przystanki autobusowe, tramwajowe i stacja kolejowa Kraków Łagiewniki Odległość od Centrum: 7,8 km

Najnowsze oferty

Pow.
33,59 m2
Pok.
2
Poz.
Piętro 2

Mieszkanie 2.B.2.06

363 611,75 zł
752 976 zł
Pow.
55,78 m2
Pok.
3
Poz.
Parter

Mieszkanie B22/P/A

674 938 zł
Pow.
33,60 m2
Pok.
2
Poz.
Piętro 3

Mieszkanie 23

507 360 zł

Skontaktuj się z nami

Interesuje mnie lokalizacja:

Interesuje mnie inwestycja:

Interesują mnie lokale:

* - pole wymagane