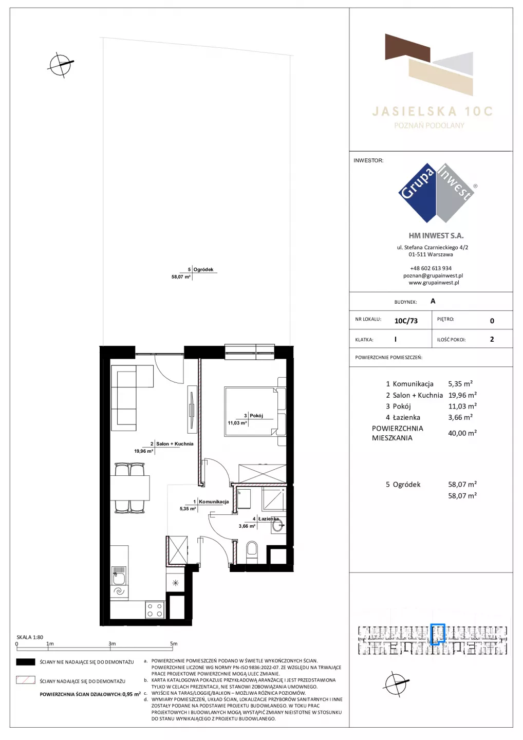
Mieszkanie 10C/73

465 600 zł dostępne

Szczegóły

Zapytaj o to mieszkanie

* - pole wymagane

Kontakt

Telefon:
690 800 811
Email:
biuro@rynkowy.pl

Podstawowe parametry

Pow. wewnętrzna
40,00 m2
Liczba pokoi
2
Poziom
Parter

Opis

Informacje o inwestycji

Jasielska 8c etap II (Jasielska)

Developer: Grupa Inwest S.A.

Udogodnienia: nowoczesna architektura, winda, komórki lokatorskie, rowerownia, wózkownia, zielone tereny rekreacyjne, blisko komunikacji miejskiej i centrum Poznania; w pobliżu znajdują się sklepy, restauracje, stacje paliw, galeria handlowa Arkada, kino, pływalnia miejska, siłownie Przynależności: balkon, taras, ogródek Bezpieczeństwo: drzwi antywłamaniowe, domofon, monitoring Wielkość Projektu: 208 mieszkań Garaże: Na terenie inwestycji powstaną miejsca postojowe w hali garażowej oraz naziemne. Komunikacja: autobus 230 m; stacja kolejowa Poznań Podolany 1,3 km Odległość od Centrum: 7,3 km

Najnowsze oferty

Pow.
33,59 m2
Pok.
2
Poz.
Piętro 2

Mieszkanie 2.B.2.06

363 611,75 zł
752 976 zł
Pow.
55,78 m2
Pok.
3
Poz.
Parter

Mieszkanie B22/P/A

674 938 zł
Pow.
33,60 m2
Pok.
2
Poz.
Piętro 3

Mieszkanie 23

507 360 zł

Skontaktuj się z nami

Interesuje mnie lokalizacja:

Interesuje mnie inwestycja:

Interesują mnie lokale:

* - pole wymagane