Mieszkanie VIK_1

219 760 zł dostępne

Szczegóły

Zapytaj o to mieszkanie

* - pole wymagane

Kontakt

Telefon:
577 525 595
Email:
biuro@rynkowy.pl

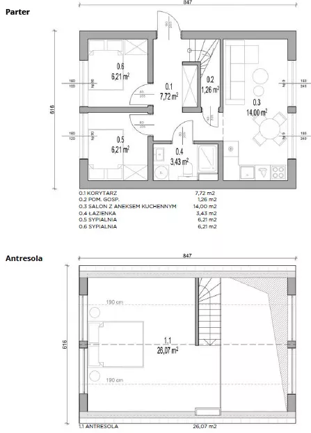
Podstawowe parametry

Pow. wewnętrzna
53,60 m2
Liczba pokoi
3
Poziom
Parter

Opis

Informacje o inwestycji

Domy Modułowe - Wrocław

Developer: Wooden Dream

Kompleksowy dom modułowy w dowolnej lokalizacji, bez pozwolenia na budowę, gotowe w 3 miesiące Ceny typów domów są podane w kwocie netto

Najnowsze oferty

Pow.
38,18 m2
Pok.
2
Poz.
Piętro 2

Mieszkanie 2.2.38

519 223,56 zł
Pow.
32,03 m2
Pok.
1
Poz.
Piętro 2

Mieszkanie 2.2.34

448 386,69 zł
Pow.
62,32 m2
Pok.
3
Poz.
Piętro 2

Mieszkanie 2.2.35

722 862,14 zł
Pow.
77,31 m2
Pok.
4
Poz.
Piętro 2

Mieszkanie 2.2.36

850 394,54 zł

Skontaktuj się z nami

Interesuje mnie lokalizacja:

Interesuje mnie inwestycja:

Interesują mnie lokale:

* - pole wymagane