Mieszkanie ONH-KLM8-LM48

675 648 zł dostępne

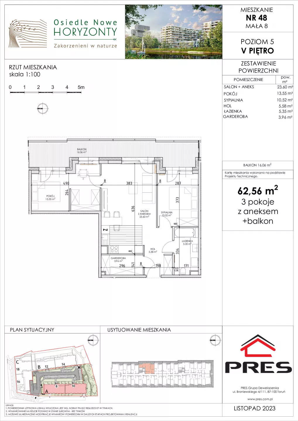
Szczegóły

Zapytaj o to mieszkanie

* - pole wymagane

Kontakt

Telefon:
577 525 595
Email:
biuro@rynkowy.pl

Podstawowe parametry

Pow. wewnętrzna
62,56 m2
Liczba pokoi
3
Poziom
Piętro 5

Opis

Informacje o inwestycji

Osiedle Nowe Horyzonty (Mała 8-10)

Developer: PRES sp. z o.o.

Udogodnienia: Nowe Horyzonty to innowacyjne rozwiązania m.in stacja zmiękczania wody, fotowoltaika na dachach zasilająca części wspólne, ekologiczne i automatyczne wykorzystanie wody deszczowej do podlewania, ograniczenie ruchu samochodowego na terenie osiedla (ok. 90% samochodów w halach garażowych podziemnych), stanowisko zewnętrzne do ładowania samochodów elektrycznych oraz możliwość doprowadzenia do każdego stanowiska instalacji do ładowania samochodów. Biedronka po drugiej stronie ulicy 207m, szkoła podstawowa, żłobek, przedszkole, park przy Balatonie, Fabryka Tańca.. Planowane prywatne przedszkole na terenie osiedla. Wyróżnik inwestycji: Lokalizacja blisko zieleni wraz z bulwarem tuż przy rzece Brdzie. Dobra okazja inwestycyjna pod najem długo-, jak i krótkoterminowy. Przynależności: Wózkownie, komórki i schowki. Balkon w każdym mieszkaniu. Tarasy i ogródki. Siłownia na świeżym powietrzu, tężnia solankowa. Docelowo ma być boisko Orlik (koszykówka, piłka nożna).Altany wraz z grillem. Górka saneczkowa. Zielony tunel. Naturalny plac zabaw. Bezpieczeństwo: Drzwi antywłamaniowe o podwyższonej izolacji akustycznej. Wideodomofony, monitoring zewnętrzny i hali garażowej.. Wielkość Projektu: 3 budynki wielorodzinne 7-piętrowe. I etap 149 mieszkań. Komórki lokatorskie. Garaże: Na terenie inwestycji powstaną 32 naziemne i 78 podziemne miejsca postojowe. Komunikacja: W pobliżu projektu znajdują się bardzo blisko przystanki autobusowe i tramwajowe. Dworzec PKS 4km, PKP Bydgoszcz Główna 5,2km Odległość od Centrum: 3,4km (ok. 6min samochodem). Szczegóły: Wysokość pomieszczeń 2,65m. Standard deweloperski.

Najnowsze oferty

Pow.
38,18 m2
Pok.
2
Poz.
Piętro 2

Mieszkanie 2.2.38

519 223,56 zł
Pow.
32,03 m2
Pok.
1
Poz.
Piętro 2

Mieszkanie 2.2.34

448 386,69 zł
Pow.
62,32 m2
Pok.
3
Poz.
Piętro 2

Mieszkanie 2.2.35

722 862,14 zł
Pow.
77,31 m2
Pok.
4
Poz.
Piętro 2

Mieszkanie 2.2.36

850 394,54 zł

Skontaktuj się z nami

Interesuje mnie lokalizacja:

Interesuje mnie inwestycja:

Interesują mnie lokale:

* - pole wymagane