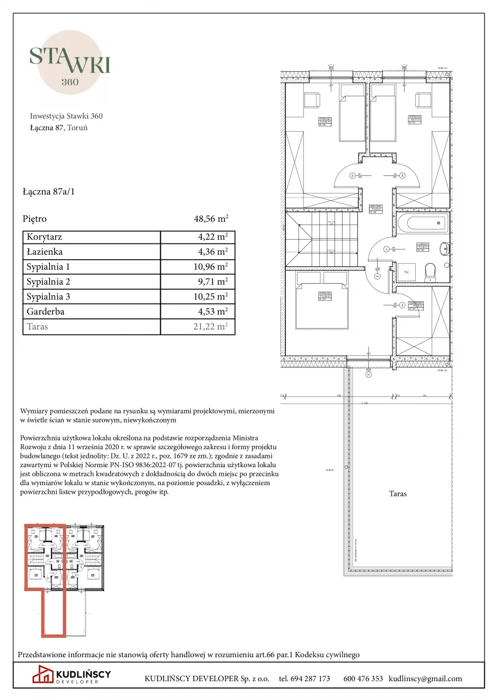
Mieszkanie 87a.1

990 001 zł dostępne

Szczegóły

Zapytaj o to mieszkanie

* - pole wymagane

Kontakt

Telefon:
577 525 595
Email:
biuro@rynkowy.pl

Podstawowe parametry

Pow. wewnętrzna
92,55 m2
Liczba pokoi
4
Poziom
Parter

Opis

Informacje o inwestycji

Stawki360 (Tataraków)

Developer: Kudlińscy Developer

Udogodnienia: Nowoczesne domy w zabudowie bliźniaczej. Kameralna i cicha lokalizacja. na lewobrzeżu Torunia. Nowoczesny budynek, wysoki standard części wspólnych. Nowoczesne windy. W pobliżu sklepy - LIDL, Pepco, Cukiernia Sowa, McDonald, Media Expert, Orlen, paczkomaty. (ok 1 km). W pobliżu tereny zielone. Szkoła podstawowa 1,7km, żłobek 550m. Przynależności: Każde mieszkanie posiada ogródek, rolety zewnętrzne, klimatyzację. Nad garażami taras. Bezpieczeństwo: Wideoomofon, drzwi antywłamaniowe. Wielkość Projektu: Inwestycja składa się z 24 budynków w zabudowie bliźniaczej, Garaże: 1 miejscowe garaże w bryle budynku. Nad garażem możliwość zaadaptowania tarasu. Komunikacja: Dworzec Autobusowy 3km. Dworzec PKP Toruń Główny 2,7km, w pobliżu linie autobusowe Odległość od Centrum: 2km UWAGI: NIE KORZYSTAĆ Z WIZUALIZACJI DEWELOPERA - SKORZYSTAJ Z ZDJĘĆ WYKOŃCZONYCH LOKALI LUB INNYCH

Najnowsze oferty

Pow.
38,18 m2
Pok.
2
Poz.
Piętro 2

Mieszkanie 2.2.38

519 223,56 zł
Pow.
32,03 m2
Pok.
1
Poz.
Piętro 2

Mieszkanie 2.2.34

448 386,69 zł
Pow.
62,32 m2
Pok.
3
Poz.
Piętro 2

Mieszkanie 2.2.35

722 862,14 zł
Pow.
77,31 m2
Pok.
4
Poz.
Piętro 2

Mieszkanie 2.2.36

850 394,54 zł

Skontaktuj się z nami

Interesuje mnie lokalizacja:

Interesuje mnie inwestycja:

Interesują mnie lokale:

* - pole wymagane