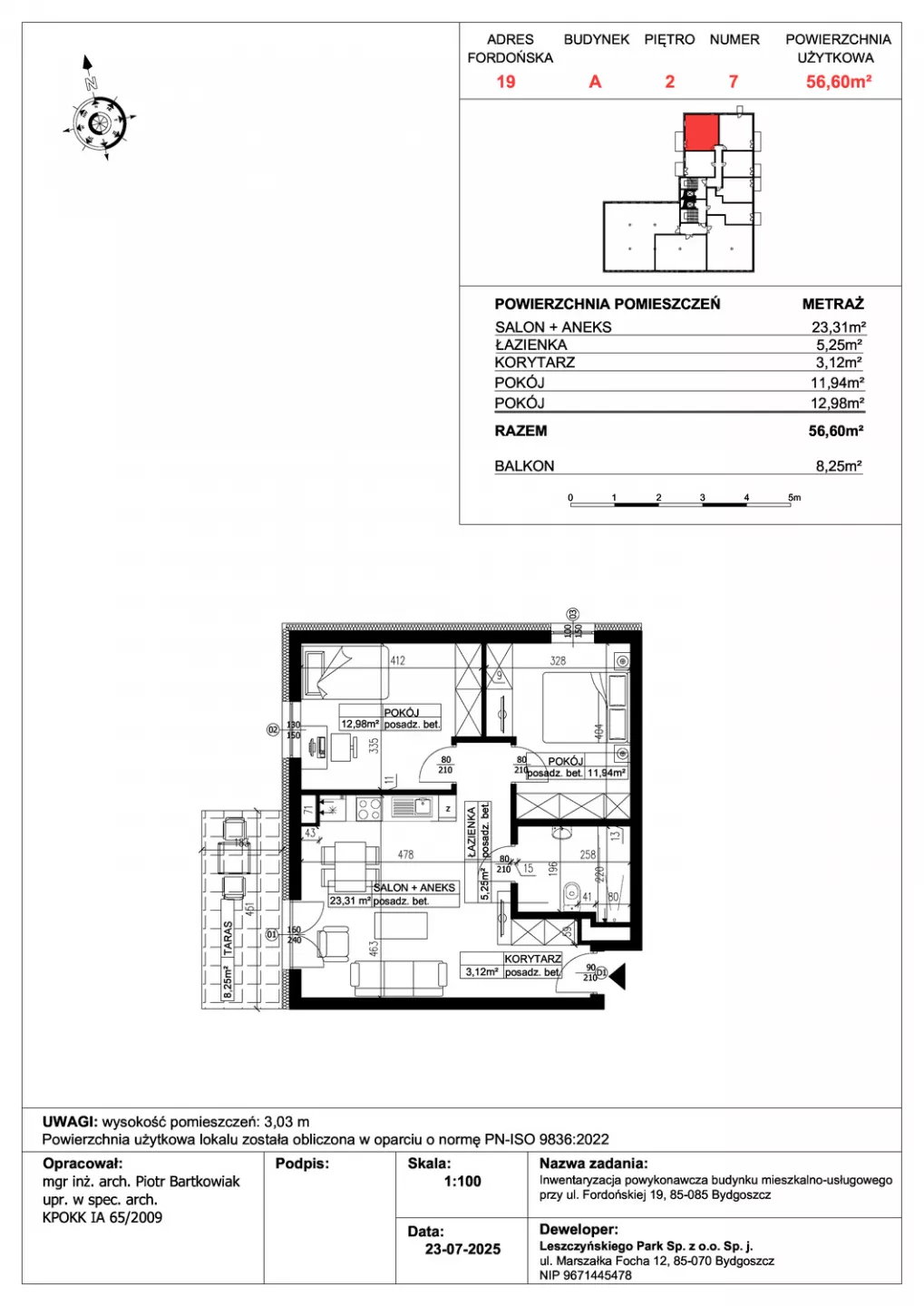
Mieszkanie 7

622 600 zł dostępne

Szczegóły

Zapytaj o to mieszkanie

* - pole wymagane

Kontakt

Telefon:
577 525 595
Email:
biuro@rynkowy.pl

Podstawowe parametry

Pow. wewnętrzna
56,60 m2
Liczba pokoi
3
Poziom
Piętro 2

Opis

Informacje o inwestycji

Ceramika - Fordońska 19 (Fordońska)

Developer: Grupa Moderator

Udogodnienia: Wyjątkowa lokalizacja - blisko centrum i dogodnie rozbudowana sieć transportu miejskiego; w okolicy bliskość terenów zielonych oraz rozbudowana sieć gastronomiczna i handlowa. Na parterze, 1 i 2 piętrze budynku będą znajdować się lokale usługowe. Winda. Przynależności: Niektóre z lokali na piętrze posiada balkon. 2 tarasy wykończone płytkami. Bezpieczeństwo: drzwi antywłamaniowe, monitoring. Wielkość Projektu: Budynki według projektu A, B, i C. Budynek A jest 6 kondygnacyjny, 36 mieszkań Garaże: Deweloper przewidział miejsca postojowe w hali garażowej i naziemne dla mieszkańców osobno i dla klientów lokali użytkowych. Komunikacja: autobus 550 m, tramwaj 750 m Odległość od Centrum: 2,8 km Szczegóły: Fotowoltaika dla części wspólnych. 2 lokale z tarasami po 30m.kw.

Najnowsze oferty

Pow.
38,18 m2
Pok.
2
Poz.
Piętro 2

Mieszkanie 2.2.38

519 223,56 zł
Pow.
32,03 m2
Pok.
1
Poz.
Piętro 2

Mieszkanie 2.2.34

448 386,69 zł
Pow.
62,32 m2
Pok.
3
Poz.
Piętro 2

Mieszkanie 2.2.35

722 862,14 zł
Pow.
77,31 m2
Pok.
4
Poz.
Piętro 2

Mieszkanie 2.2.36

850 394,54 zł

Skontaktuj się z nami

Interesuje mnie lokalizacja:

Interesuje mnie inwestycja:

Interesują mnie lokale:

* - pole wymagane