Mieszkanie 5_1BC

437 800 zł dostępne

Szczegóły

Zapytaj o to mieszkanie

* - pole wymagane

Kontakt

Telefon:
577 525 595
Email:
biuro@rynkowy.pl

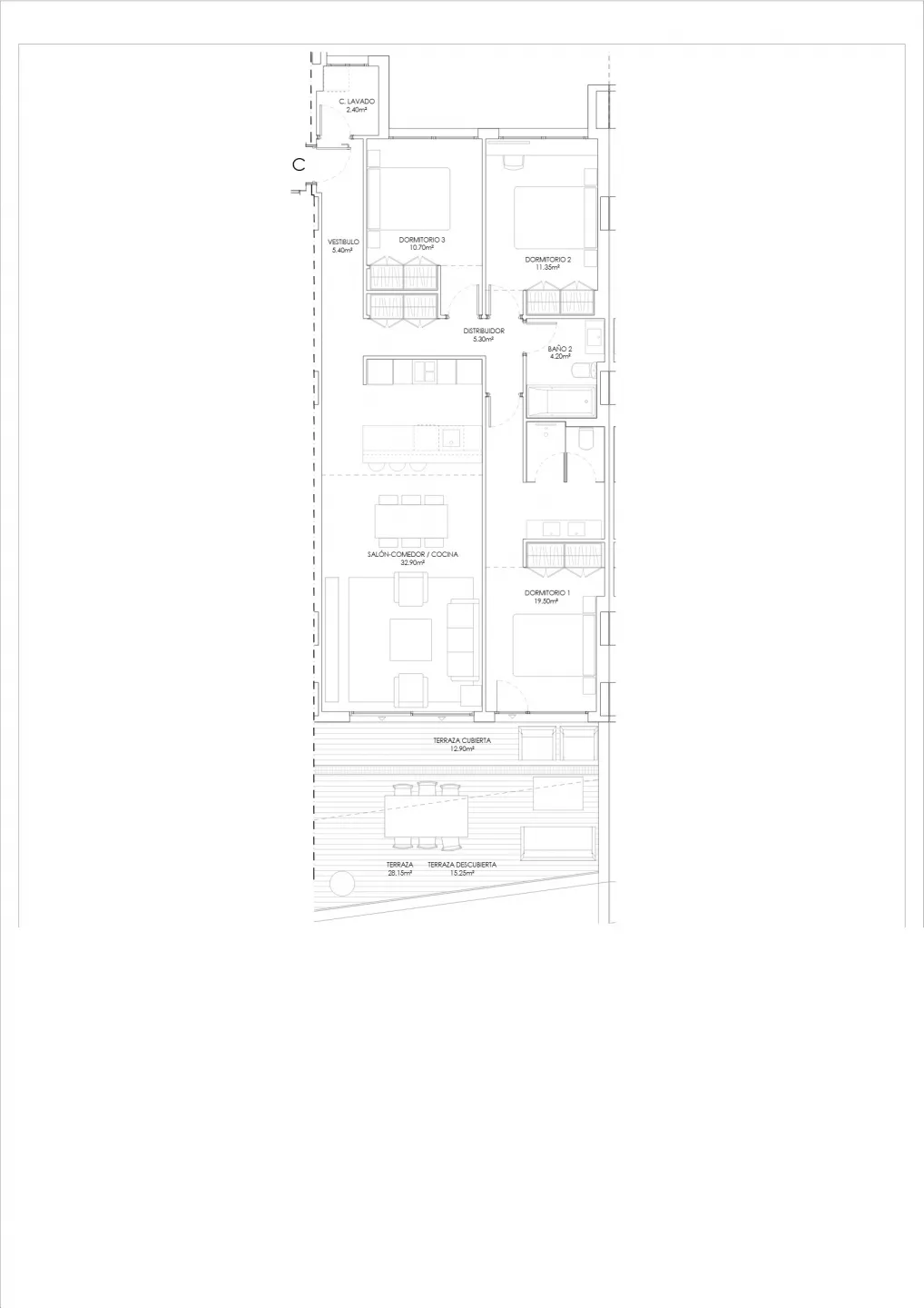
Podstawowe parametry

Pow. wewnętrzna
122,84 m2
Liczba pokoi
4
Poziom
Parter

Opis

Informacje o inwestycji

Pure Sun II

Developer: Hiszpania - Styllowo Nieruchomości

Opis: Apartamenty z dwiema i trzema sypialniami rozmieszczone są w różnych blokach, tworząc harmonijny układ. Projekt łączy nowoczesną architekturę z doskonale zaprojektowanym otoczeniem – dużymi ogrodami oraz przestrzeniami rekreacyjnymi, dzięki którym mieszkańcy mogą cieszyć się koncepcją życia w kurorcie. Są to bardzo przestronne apartamenty, penthouse’y oraz mieszkania na parterze z układami, jakością wykończenia i standardem zaprojektowanym tak, aby spełnić oczekiwania najbardziej wymagających klientów. Każdy apartament posiada dużą taras, który stanowi integralną część mieszkania – przestronne przedłużenie wnętrza z zachwycającymi widokami. Udogodnienia: Lokalizacja i otoczenie to kolejne atuty Pure Sun, oferujące niepowtarzalne widoki na Morze Śródziemne. Manilva to wyjątkowe miasto, wyróżniające się swoim położeniem, kulturą i gastronomią – idealne miejsce do życia w słońcu, blisko morza, w przyjaznej atmosferze.W Pure Sun II przestronne części wspólne zostały zaprojektowane tak, by oferować szeroki wachlarz udogodnień, usług i rozrywki dla wszystkich mieszkańców. Twój własny resort - rozległe ogrody z basenem infinity z chlorowaniem solankowym, solarium, strefa relaksu i jogi, spa z łaźnią turecką, jacuzzi i sauną, wewnętrzna siłownia, pokój rekreacyjny z coworkingiem, strefą multimedialną i rozrywki – a wszystko to otoczone profesjonalnie zagospodarowaną zielenią. Przynależności: Pure Sun II Residence położone jest w urokliwej miejscowości Manilva, słynącej z pięknych plaż, tradycyjnej andaluzyjskiej atmosfery i wyśmienitej kuchni. W pobliżu znajdują się liczne pola golfowe, w tym prestiżowy Finca Cortesin Golf Club, a także malownicze porty jachtowe, takie jak Puerto de la Duquesa. Bliskość miejscowości Estepona oraz Sotogrande zapewnia dostęp do luksusowych butików, restauracji i wydarzeń kulturalnych. Okolica oferuje idealne warunki do aktywnego wypoczynku – spacery, sporty wodne i piesze wycieczki w górach Sierra Bermeja. W pobliżu znajdują się również szkoły międzynarodowe, centra medyczne oraz supermarkety. Bezpieczeństwo: Pure Sun II Residence to inwestycja w zamkniętej urbanizacji z kontrolowanym dostępem dla mieszkańców i gości. Cały kompleks otoczony jest profesjonalnie zagospodarowanymi terenami zielonymi, zwiększającymi poczucie prywatności. Teren osiedla jest monitorowany, a dostęp do części wspólnych, takich jak baseny czy spa, jest ograniczony do mieszkańców. Deweloperzy zadbali o bezpieczeństwo, stosując nowoczesne rozwiązania architektoniczne oraz wysokiej jakości materiały budowlane. Spokojna lokalizacja, z dala od miejskiego hałasu, dodatkowo zwiększa komfort i bezpieczeństwo mieszkańców. Wielkość Projektu: 100 apartamentow Garaż: Tak, wieksze apartamenty maja po 2 miejsca na samochod w garazu Komunikacja: Pure Sun II Residence ma dogodny dostęp do głównych arterii komunikacyjnych Costa del Sol, takich jak A-7 oraz AP-7. Dojazd do centrum Estepony zajmuje zaledwie około 10-15 minut jazdy samochodem. Międzynarodowe lotnisko w Maladze znajduje się w odległości około 1 godziny drogi, a do Gibraltaru można dotrzeć w około 30-40 minut. W okolicy dostępne są lokalne linie autobusowe, ułatwiające poruszanie się bez potrzeby korzystania z własnego pojazdu. Bliskość głównych dróg sprawia, że podróżowanie po Costa del Sol i do innych miast Andaluzji jest szybkie i komfortowe. Odległość od morza: 5 min samochodem, okolo 1,5km

Najnowsze oferty

Pow.
38,18 m2
Pok.
2
Poz.
Piętro 2

Mieszkanie 2.2.38

519 223,56 zł
Pow.
32,03 m2
Pok.
1
Poz.
Piętro 2

Mieszkanie 2.2.34

448 386,69 zł
Pow.
62,32 m2
Pok.
3
Poz.
Piętro 2

Mieszkanie 2.2.35

722 862,14 zł
Pow.
77,31 m2
Pok.
4
Poz.
Piętro 2

Mieszkanie 2.2.36

850 394,54 zł

Skontaktuj się z nami

Interesuje mnie lokalizacja:

Interesuje mnie inwestycja:

Interesują mnie lokale:

* - pole wymagane